氣動襯氟調節閥新款簡介:
ZXPF氣動襯氟調節閥新款零缺陷型產品,是臺臣閥門引進國外進口技術,結合襯里襯氟閥門工藝的基礎上,改良創新的新產品。臺臣完美的結合了國外的進口附件,如西門子、山武、ABB等智能定位器,可在各種工況苛刻,腐蝕性強的化工廠內,連接PLC實現遠程控制介質壓力、流量等參數。氣動襯氟調節閥廣泛應用于各種工藝中對酸、堿等強腐蝕介質以及有毒易揮發等氣體、液體介質的過程控制。 下面臺臣閥門詳細介紹下氣動襯氟調節閥工藝、用途、特點、圖片及給用戶的相關選型規格書。

氣動襯氟調節閥零缺陷工藝:
臺臣牌氣動襯氟調節閥具有獨特外觀,跟同行產品完全不一樣,內部跟介質接觸所有部位,采用高壓注塑工藝,內襯有耐老化的聚四氟乙烯F46,或PFA等耐強腐蝕塑料,包括閥體、閥桿均襯有耐腐蝕聚四氟乙烯,由我司改良升級后的氣動襯氟調節閥結構具有零泄漏、零缺陷等優點。氣動襯氟調節閥可適用于鹽酸、硫酸、硝酸、氫氟酸、海水等腐蝕性很強的場合中做為調節介質壓力、流量參數的給定值。關于氣動襯氟調節閥內部結構圖、選型、價格等相關問題,請聯系工作人員,讓我司為您服務。
氣動襯氟調節閥特點:
1、耐腐性好:閥體內腔、閥芯、閥座、均包襯有3mm厚的聚全氟乙丙烯,能耐強腐蝕性流體。
2、密封性能好:采用聚四氟乙烯波紋管和填料雙重密封。
3、泄漏量少:由于閥芯、閥座是軟密封的泄漏量遠遠低于國家Ⅳ級標準。
4、精度高:采用精小型的氣動執行機構和電動執行機構,體積小,重量輕。
5、功能強:配防爆執行器或者防爆西門子、ABB等定位器,可在各種腐蝕性強,工況苛刻的場合中正常運行。
 | 臺臣閥門有限公司 | 儀 表 規 格 書 | 任務單號 | |
| 控 制 閥 | 項目 | |
| 編 制 | 俞建耀 | 審核 | 何東明 | 日 期 | 2019/11/9 | 編號 | TC1911099YA |
| 原 始 數 據 | 規 格 數 據 |
| 概述 | 1 | 位號 | | 閥主體 | 1 | 名稱 | 氣動薄膜襯氟調節閥 |
| 2 | 用途 | | 2 | 型號 | ZXPF-16K |
| 3 | 管道材質 | | 3 | 公稱通徑mm | 100 |
| 4 | 管道規格 | DN100 | 4 | 閥座直徑mm | 100 |
| 5 | 數量 | 1 | 5 | 閥上蓋形式 | 襯氟型 |
| 操作條件 | 6 | 介質名稱 | 粗鹽水 | 6 | 流量特性 | 等百分比 EQ% |
| 7 | 流量 | 液態Liquid | 最大 | | m3/h | 7 | 閥體材質 | WCB+F46 |
| 8 | 正常 | | 8 | 閥芯材質 | 閥座材質 | 316L+F46 | F46 |
| 9 | 最小 | | 9 | 填料材質 | 膜片材質 | V-PTFE | 丁腈橡膠 |
| 10 | 操作溫度(℃) | | 55 | | 10 | 連接方式 | 形式 | 法蘭 |
| 11 | 標準密度 | 1.165 | g/cm3 | 11 | 標準 | HG/T20592-2009 |
| 12 | 進口粘度(CP)/進口絕熱指數 | - | 12 | 規格 | 1.6MPa | RF |
| 13 | 進口汽化壓力(KPa.A) /進口臨界壓力(MPa.A) | - | 執行機構 | 13 | 類型 | 薄膜式 |
| 14 | 閥前壓力P1(MPa.A) | 0.45 | 14 | 型號 | PZM600K(I) |
| 15 | 閥后壓力P2(MPa.A) | 0.34 | 15 | 氣源壓力 | 0.3Mpa |
| 16 | 壓差△P(MPa.G) | 0.11 | 16 | 彈簧范圍Kpa.G | 80-240 |
| 17 | 閥關閉時壓差(MPa.G) /設計壓力 | | 17 | 額定行程(mm) | 40 |
| 18 | 故障時閥位置 | 關閉 | 18 | 支架 | - |
| 19 | 整機作用方式 | FC(氣開式) | 19 | 手輪機構 | - |
| 20 | 設定壓力(MPa.G) | | 定位器 | 20 | 型號 | YT-1000LSP |
| 21 | 調節范圍(MPa.G) | | 21 | 防爆等級 | ExiaⅡCT6 |
| 22 | 泄漏等級 | 標準 | Ⅵ | GB/T4213-2010 | 22 | 輸入信號 | 輸出信號 | 4~20mA | - |
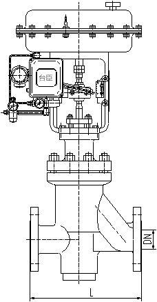
外形圖: | 23 | 電氣接口 | 氣源接口 | G1/2" | ZG1/4"(φ8) |
| 電磁閥 | 24 | 型號 | - |
| 25 | 防爆等級 | - |
| 26 | 電壓 | 電氣接口 | - | |
| 附件 | 27 | 過濾減壓器 | AFR2000 |
| 28 | 行程開關 | - |
| 29 | 快排閥 | - | 保位閥 | - |
| 30 | 安裝法蘭 | 材質 | - | - |
| 31 | 緊固件 | 材質 | - | - |
| 32 | 密封墊片 | 材質 | - | - |
| 計算數據 | | 流量系數Kv | 開度 % |
| 最大值 | | | |
| 正常值 | | | |
| 最小值 | | | |
| 選用額定Kv值 | | 100 | R | 30 |
| 特殊要求 | |
| 備注 | 請確認具體參數。 |
| DN | L | | | | | | | 客戶確認簽字: |
| 100 | 350 | | | | | | |
| 本表經客戶確認后可作為合同附件 http://www.zzjd1688.com.cn | 第 2 頁 共 2 頁 |
更多
氣動襯氟調節閥選型、樣本、說明書等資料,請聯系我司工作人員。