![]() | 臺臣閥門 | 儀表規格書 | 用戶 | 焦作市國能換熱設備公司 | ||||||||||||||
| 調節閥選型參數表 | 項目 | 蒸汽系統 | ||||||||||||||||
| 編 制 | 華旭明 | 審核 | 何東明 | 日期 | 2019/1/23 | 編號 | TC1901231XA | |||||||||||
| 原始數據 | 規格數據 | |||||||||||||||||
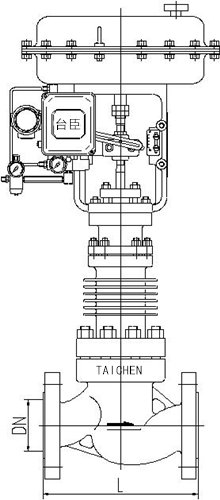
| 概 述 | 1 | 位號 | 閥 主 體 | 1 | 名稱 | 氣動薄膜套筒調節閥 | ||||||||||||
| 2 | 用途 | 2 | 型號 | ZXM-25KS | ||||||||||||||
| 3 | 管道材質 | 3 | 公稱通徑mm | 150 | ||||||||||||||
| 4 | 管道規格 | 4 | 閥座直徑mm | 150 | ||||||||||||||
| 5 | 數量 | 5 | 閥上蓋形式 | 散熱型 | ||||||||||||||
| 操 作 條 件 | 6 | 介質名稱 | 過熱蒸汽 | 6 | 流量特性 | 等百分比 EQ% | ||||||||||||
| 7 | 流量 | 蒸汽 Steam | 大 | Kg/h | 7 | 閥體材質 | WCB | |||||||||||
| 8 | 正常 | 8000 | 8 | 閥芯 | 閥座材質 | 304+STL | 304+STL | |||||||||||
| 9 | 小 | 9 | 填料 | 膜片材質 | 石墨 | 丁腈橡膠 | ||||||||||||
| 10 | 操作溫度(℃) | 飽和蒸汽壓℃ | 350 | 10 | 連接方式 | 形式 | 法蘭 | |||||||||||
| 11 | 標準密度 | 11 | 標準 | HG/T20592-2009 | ||||||||||||||
| 12 | 粘度、絕熱指數 | - | 12 | 規格 | 2.5MPa | RF | ||||||||||||
| 13 | 臨界壓力(MPa.A) | - | 執 行 機 構 | 13 | 類型 | 薄膜式 | ||||||||||||
| 14 | 閥前壓力P1(MPa.A) | 1.1 | 14 | 型號 | PZM1000K | |||||||||||||
| 15 | 閥后壓力P2(MPa.A) | 15 | 氣源壓力 | 0.3Mpa | ||||||||||||||
| 16 | 壓差△P(MPa.G) | 16 | 彈簧范圍Kpa.G | 80-240 | ||||||||||||||
| 17 | 閥關閉時壓差(MPa.G) | 17 | 額定行程(mm) | 60 | ||||||||||||||
| 18 | 故障時閥位置 | 關閉 | 18 | 支架 | - | |||||||||||||
| 19 | 整機作用方式 | FC(氣開式) | 19 | 手輪機構 | ||||||||||||||
| 20 | 設定壓力(MPa.G) | 定 位 器 | 20 | 型號 | 6DR5010-0NN00-0AA0/6DR4004-8J | |||||||||||||
| 21 | 調節范圍(MPa.G) | 21 | 防爆等級 | - | ||||||||||||||
| 22 | 泄漏等級 | 標準 | Ⅳ | GB/T4213-2010 | 22 | 輸入信號 | 輸出信號 | 4~20mA | 4~20mA | |||||||||
外形圖: | 23 | 電氣接口 | 氣源接口 | NPT1/2" | ZG1/4" | |||||||||||||
| 電 磁 閥 | 24 | 型號 | ||||||||||||||||
| 25 | 防爆等級 | - | ||||||||||||||||
| 26 | 電壓 | 電氣接口 | - | |||||||||||||||
| 附 件 | 27 | 過濾減壓器 | AW20-02B-2-A | |||||||||||||||
| 28 | 行程開關 | - | ||||||||||||||||
| 29 | 快排閥 | - | 保位閥 | - | ||||||||||||||
| 30 | 法蘭 | 材質 | - | - | ||||||||||||||
| 31 | 緊固件 | 材質 | - | - | ||||||||||||||
| 32 | 墊片 | 材質 | - | - | ||||||||||||||
| 計 算 數 據 | 流量系數Kv | 開度 % | ||||||||||||||||
| 大 | ||||||||||||||||||
| 正常 | ||||||||||||||||||
| 小 | ||||||||||||||||||
| Kv | 400 | R | 50 | |||||||||||||||
| 特殊要求 | ||||||||||||||||||
| 備注 | ||||||||||||||||||
| DN | L | 客戶確認簽字: | ||||||||||||||||
| 150 | 473 | |||||||||||||||||
